GW13 سیریز ٹرانسفارمر نیوٹرل پوائنٹ گیپ گراؤنڈنگ پروٹیکشن ڈیوائس جو LUGAO کے ذریعہ تیار کیا گیا ہے ، کو ٹرانسفارمر غیر جانبدار نقطہ کی موصلیت کو بجلی سے زیادہ وولٹیج سے بچانے کے لئے ڈیزائن کیا گیا ہے ، اوور وولٹیج اور پاور فریکوینسی (عارضی) اوور وولٹیج کو تبدیل کرنا ہے۔ لوگو کے پاس پیشہ ورانہ پیداوار کے سازوسامان اور برآمد کا بھرپور تجربہ ہے ، اور انوینٹری کو جلدی سے پہنچایا جاسکتا ہے۔
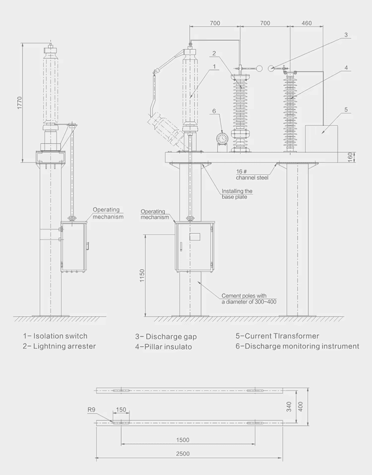
لوگو کی جی ڈبلیو 13 سیریز ٹرانسفارمر غیر جانبدار پوائنٹ اوور وولٹیج پروٹیکٹر بنیادی طور پر 110KV اور 220KV پاور ٹرانسفارمر کے غیر جانبدار پوائنٹ سرکٹس میں استعمال ہوتے ہیں۔ وہ ٹرانسفارمر کے غیر جانبدار نقطہ موصلیت کو اوور وولٹیج کو پہنچنے والے نقصان سے بچاتے ہیں اور ٹرانسفارمر کو گراؤنڈڈ اور غیر گراؤنڈ غیر جانبدار پوائنٹ آپریشن طریقوں کے مابین سوئچ کرنے کے اہل بناتے ہیں۔ جب بجلی کے خلاف بیک وقت تحفظ ، بجلی کی فریکوئنسی ، اور سوئچنگ اوور وولٹیجز کی ضرورت ہوتی ہے تو ، تحفظ کے متوازی طور پر ایک خلا اور آریسٹر کو منسلک کیا جاسکتا ہے۔ جی ڈبلیو 13 سیریز غیر جانبدار پوائنٹ اوور وولٹیج پروٹیکٹر ایک مکمل سیٹ ہے جو ایک منقطع ، زنک آکسائڈ آئرسٹر ، خارج ہونے والا فرق اور موجودہ ٹرانسفارمر کو مربوط کرتا ہے۔ اس میں اعلی تھرمل صلاحیت اور عمدہ تحفظ ، لچکدار تشکیلات ، اور استعمال میں آسانی ہے۔ صارف کی ضروریات کو پورا کرنے کے لئے ایک خالص گیپ ڈیزائن یا منقطع اور خارج ہونے والے فرق کا مجموعہ منتخب کیا جاسکتا ہے۔
GW13 پروٹیکشن ڈیوائس تکنیکی وضاحتیں
| lt |
یونٹ |
دلیل |
||
| پروڈکٹ ماڈل |
|
Lugao-GW13-110 |
LUGAO-GW13-220 |
|
| ریٹیڈ وولٹیج |
کے وی |
110 | 220 | |
| ٹرانسفارمر غیر جانبدار وولٹیج کا مقابلہ کریں |
بجلی سے بھر پور اور کٹ وولٹیج (چوٹی) |
کے وی |
250 | 400 |
| 1 منٹ پاور فریکوئینسی (موثر قیمت) |
کے وی |
95 | 200 | |
| غیر جانبدار الگ تھلگ سوئچ |
موجودہ ریٹیڈ |
A | 630 | 630 |
| آپریٹنگ میکانزم |
|
CS14G (دستی) یا CJ2 (الیکٹرک) |
||
| زنک آکسائڈ آریسٹر |
ریٹیڈ وولٹیج (RMS) |
کے وی |
72 | 144 |
| مسلسل آپریٹنگ وولٹیج |
کے وی |
58 | 116 | |
| ڈی سی 1 ایم اے ریفرنس وولٹیج |
کے وی |
103 | 205 | |
| بجلی کی شمولیت کا بقایا وولٹیج موجودہ |
کے وی |
186 | 320 | |
| خارج ہونے والے فرق |
گیپ الیکٹروڈ فاصلے کی حد |
ملی میٹر | 90-150 | 220-320 |
| پاور فریکوینسی ڈسچارج وولٹیج کی حد |
کے وی |
50-83 | 100-166 | |
| 1.2/50US تسلسل ڈسچارج وولٹیج |
کے وی |
120-190 | 250-320 | |
| موجودہ ٹرانسفارمر |
قسم |
|
ایپوسی رال نے مکمل طور پر منسلک ستون کی قسم 10KV ڈال دیا |
|
| تبدیلی کا تناسب |
|
100/5،200/5،300/5.40015.50015.600/5 |
||
